Pacayastraat 2, Amsterdam

All worked for many years in commercial real estate. Experienced several roles within management positions.

asking price exploitation € 245 k.k.
rent p.m. € 245 k.k.

Description

THE BRIDGE
The Bridge is dé plek om te wonen, te werken en te ontspannen. Dit markante gebouw bestaat uit twee torens van 40 en 60 meter hoog. Naast de kantoortoren komt een luxe wooncomplex met 162 woningen, de torens zijn middels de begane grond met elkaar verbonden. Met The Bridge heeft Dam & Partners Architecten een gebouw ontworpen dat staat voor duurzaamheid, hoogwaardige afwerking en een luxe uitstraling.

De commerciële toren telt 10 verdiepingen en is goed voor circa 9.600 m² aan high-end kantoor- en labruimte. Iedere verdieping beschikt over een buitenruimte en op de vijfde verdieping is een complete daktuin gerealiseerd. Van alle kanten komt het daglicht binnen wat zorgt voor een gevoel van licht en ruimte. Het gebouw draagt bij aan het verhogen van de gebruikskwaliteit, het optimaliseren van klimaatadaptie en het vergroten van de biodiversiteit. The Bridge is casco WELL GOLD gecertificeerd.

LOCATIE
The Bridge bevindt zich in het “Amsterdam Life Sciences District” in Amsterdam Zuidoost. Het Amsterdam Life Sciences District kenmerkt zich door zijn levendige ecosysteem. Het is een plek waar bedrijven zich durven te verbinden en sterker worden in het proces. En waar gevestigde bedrijven kunnen uitbreiden en hun innovaties over de hele wereld kunnen sturen.

BEREIKBAARHEID
Per auto:
Het kantoorgebouw is met de auto uitstekend bereikbaar vanwege haar centrale ligging tussen de knooppunten van de A2-Amsterdam-Utrecht, de Ringweg van Amsterdam A9 en de A10.

Per openbaar vervoer:
Het nabijgelegen Station Holendrecht biedt directe trein-, metro- en busverbindingen naar Amsterdam, Rotterdam en Utrecht. Bovendien is The Bridge gemakkelijk bereikbaar per fiets en
scooter dankzij het uitgebreide netwerk van fietspaden in de omgeving.

BESCHIKBAARHEID
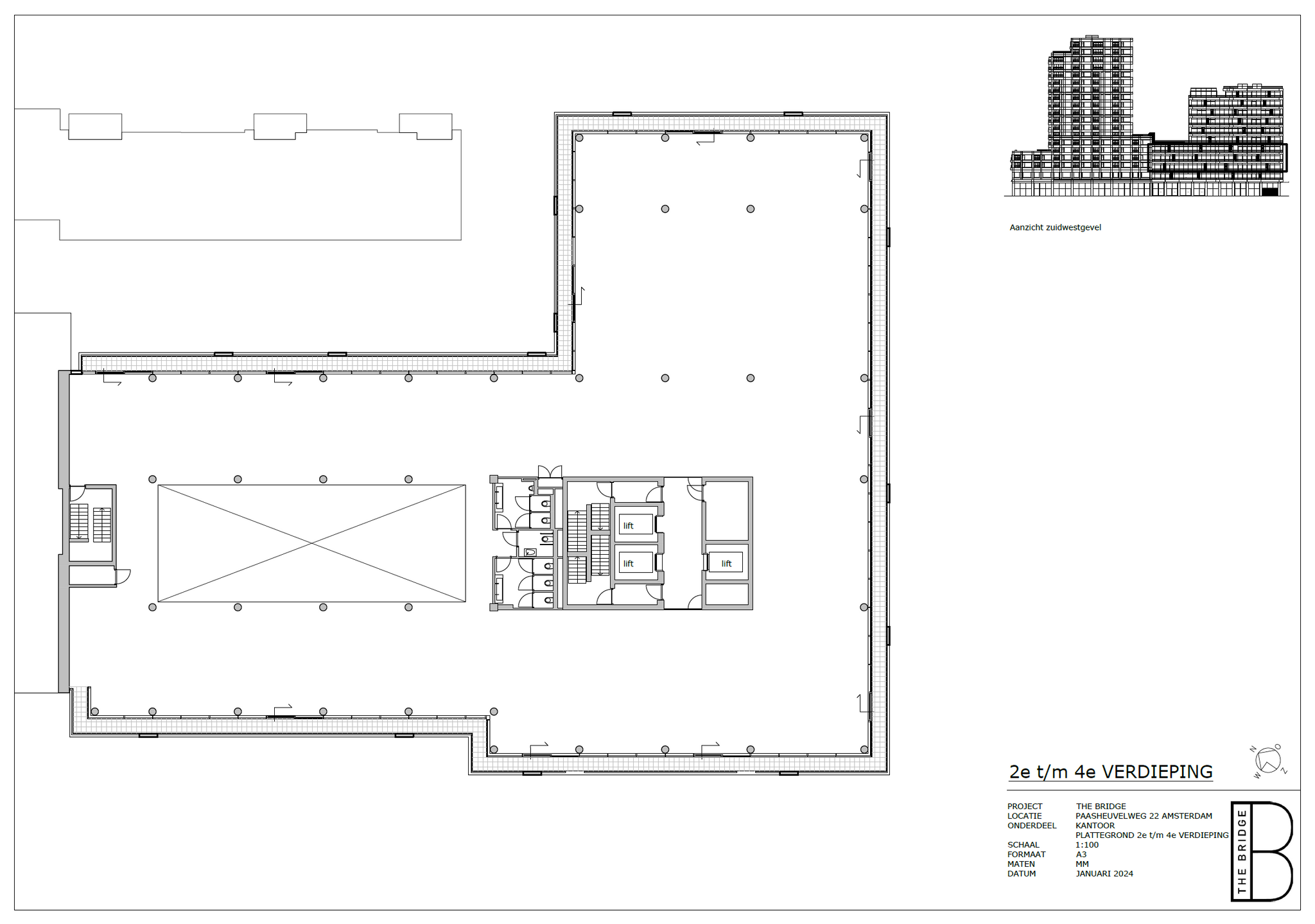
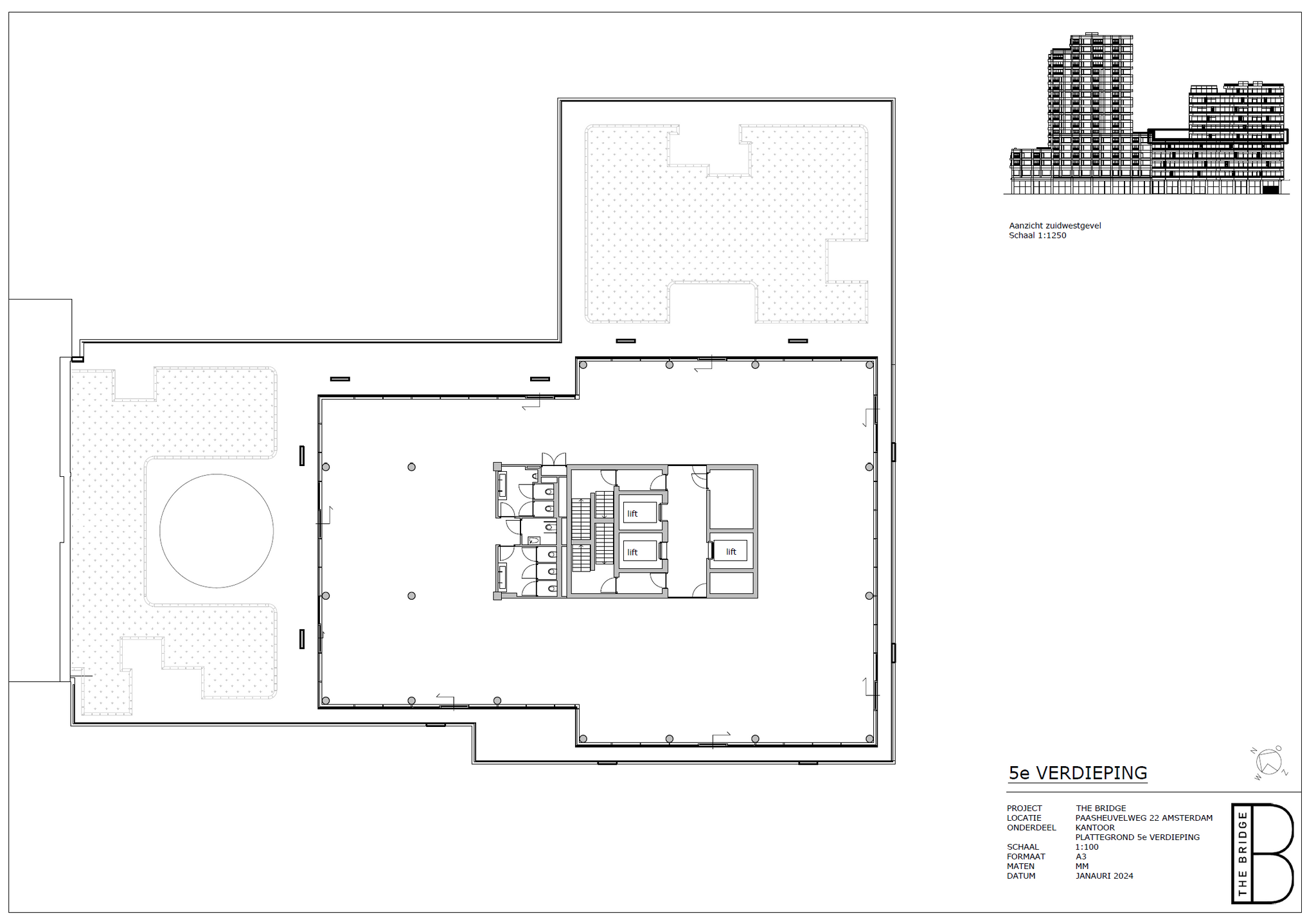
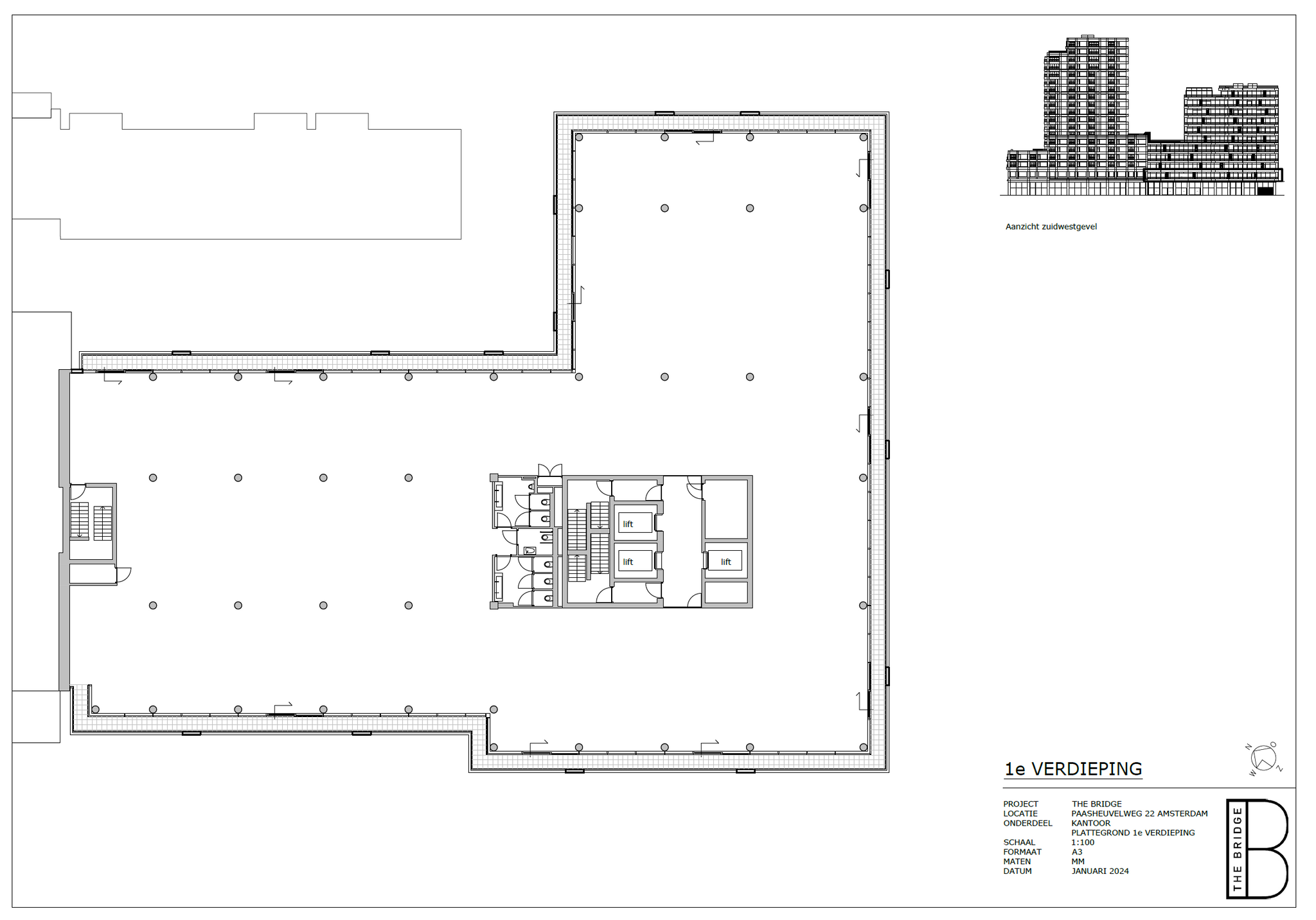
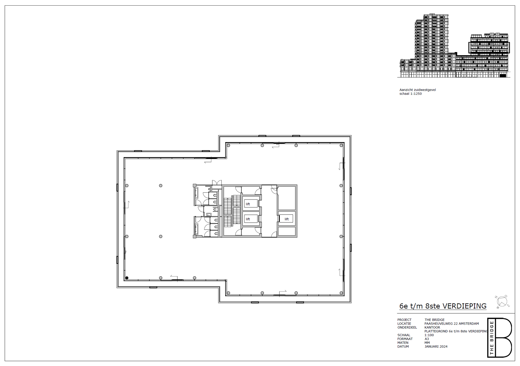
Voor de verhuur is er circa 9.630 m² kantoorruimte beschikbaar bij The Bridge. De beschikbaarheid is als volgt verdeeld:

• 1e verdieping circa 1.490 m² VVO kantoorruimte;
• 2e verdieping circa 1.328 m² VVO kantoorruimte;
• 3e verdieping circa 1.328 m² VVO kantoorruimte;
• 4e verdieping circa 1.328 m² VVO kantoorruimte;
• 5e verdieping circa 757 m² VVO kantoorruimte;
• 6e verdieping circa 757 m² VVO kantoorruimte;
• 7e verdieping circa 757 m² VVO kantoorruimte;
• 8e verdieping circa 757 m² VVO kantoorruimte;
• 9e verdieping circa 757 m² VVO kantoorruimte – reeds verhuurd;
• 10e verdieping circa 372 m² VVO kantoorruimte – reeds verhuurd;

Deelverhuur is mogelijk vanaf 372 m².

OPLEVERING
Q3 2025.

HUURPRIJS
€ 245,- per m² v.vo. kantoorruimte per jaar, te vermeerderen met BTW.

HUURTERMIJN
10 jaar met verleningsopties.

PARKEREN
In de onder het gebouw gelegen parkeergarage zijn 100 auto parkeerplaatsen beschikbaar en 190 plekken voor fietsen/scooters.

De parkeergarage is voorzien van laadpalen voor elektrische auto’s en fietsen.

FACILITEITEN
– Ruim opgezette lobby;
– Ontvangstservice via receptie;
– Restaurant;
– Juicebar;
– Luxe gym;
– 3 vergaderruimten te gebruiken door de huurders;
– Buitenruimte per kantoor.

BIJZONDERHEDEN
Huurovereenkomst kantoorruimte en andere bedrijfsruimte ex art. 7:230a BW volgens het model van de Raad voor Onroerende Zaken versie februari 2015.

HUURPRIJSAANPASSING
Jaarlijks, op basis van de wijziging van het maandprijs-indexcijfer volgens de consumentenprijsindex (CPI) reeks CPI-totale bestedingen (2015=100), gepubliceerd door het Centraal Bureau voor de Statistiek.

VOORBEHOUD
De vermelde informatie is van algemene aard en is niet meer dan een uitnodiging om in onderhandeling te treden. Aan de inhoud van deze informatie kunnen geen rechten worden ontleend.

Meer weten? Neem contact op met Marlyn Geesink van CityState voor meer informatie of het inplannen van een bezichtiging.

Marlyn Geesink | geesink@citystate.nl | 06 820 621 69

More info

Features

  • Status Beschikbaar
  • Aangeboden sinds 17 December 2025
  • Vraagprijs per m² € 245 k.k.
  • Aanvaarding In overleg
  • Bouwvorm Bestaande bouw
  • Oppervlakte ca. 9600 m²
  • Bouwjaar 2025
  • Aanmeldingsreden In verhuur genomen
  • Bouwtype Kantoorruimte
  • Aantal units 372
  • Plaats Amsterdam
  • Postcode 1105 bt
  • Adres Pacayastraat 2
  • Verdiepingen 10
Show more features
Questions about this offer?
Contact Wouter Stevens

I would like to help you!

Welke cookies zijn er?

We onderscheiden verschillende soorten cookies.

Functionele cookies

We onderscheiden verschillende soorten cookies.

Analytische cookies

We onderscheiden verschillende soorten cookies.

Tracking cookies

We onderscheiden verschillende soorten cookies.

Social media plug-in cookies

We onderscheiden verschillende soorten cookies.